Property Detail

5461 Soria Ave

Ave Maria FL 34142

$359,000

Status: Active

Property Details

Description

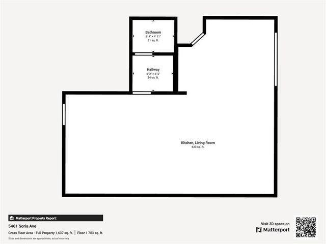
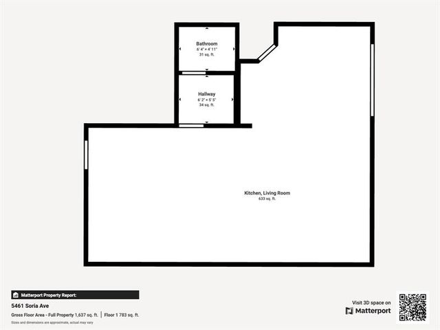
Embrace the opportunity to own a piece of paradise in Ave Maria. This Anaheim model in Silverwood at Marple Ridge is a 2 story home featuring 3 spacious bedrooms 2.5 bathrooms, and a one car garage, upgraded kitchen, blinds and many more. Here at Ave Maria residents enjoy numerous amenities, including the fitness center, bike/jogging paths, waterpark, playgrounds, dog parks, heated pool, shopping, restaurants, farmers market, community events and more. Also the city have wide variety of recreation with a great school district. Ave Maria is ranked among the top growing city in USA.

Map Location

Ready to Get Started?

Dianna Hopkins

Diana Hopkins

Inquire Now
Roya1234 Real estate realtor https://www.google.com/maps/place/The+Hopkins+Team+-+Compass/@26.108305,-80.257658,17z/data=!3m1!5s0x88d907ec440d08e7:0x8a62a85010447c0!4m17!1m8!3m7!1s0x88d907eba23ffff5:0xba6da457509aa80!2s8201+Peters+Rd+%231000,+Plantation,+FL+33324,+USA!3b1!8m2!3d26.108305!4d-80.257658!10e3!3m7!1s0x88d907cec0952b55:0x1d6eb7d6f2a91f8!8m2!3d26.1082466!4d-80.2576057!9m1!1b1!16s%2Fg%2F11f4lmdrcd https://www.yelp.com/writeareview/biz/U9ZCCz8LGP5Rcptp49fPzg?return_url=%2Fbiz%2FU9ZCCz8LGP5Rcptp49fPzg&review_origin=biz-details-war-button https://www.facebook.com/TheHopkinsTeam/reviews/?ref=page_internal https://www.zillow.com/profile/TheHopkinsTeam/