Property Detail

3234 Taft St

Hollywood FL 33021

$429,000

Status: Active

Property Details

Description

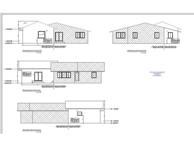
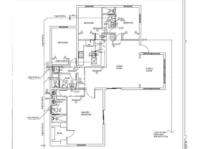
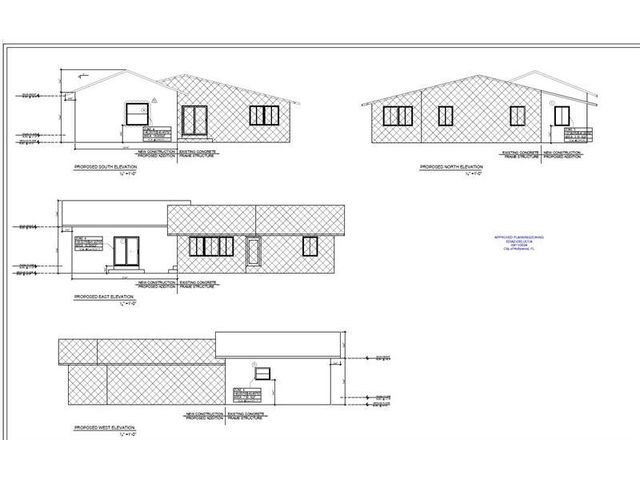
INVESTMENT OPPORTUNITY FOR END USER, INVESTORS, BUILDERS OR CONTRACTORS! NEAR JOE DIMAGGIO HOSPITAL AND DESIRABLE HOLLYWOOD HILLS! 4 BED 3 BATH HOME WITH BRAND NEW ADDITION TO THE HOME ADDING OVER 500 SQ FT OF LIVING SPACE WITH A NEW MASTER BEDROOM AND MASTER BATHROOM. APPROVED PLANS ALREADY INPLACE. THE ADDITION HAS ALREADY BEEN APPROVED WITH PERMITS. HOME IS ALREADY COMPLETELY BUILT OUT JUST FINISH THE INTERIOR AND MOVE IN OR SELL/RENT AS AN INVESTMENT PROPERTY! CONTRACTOR AVAILABLE TO TAKE OVER THE PROJECT OR BRING YOUR OWN!

Map Location

Ready to Get Started?

Dianna Hopkins

Diana Hopkins

Inquire Now
Roya1234 Real estate realtor https://www.google.com/maps/place/The+Hopkins+Team+-+Compass/@26.108305,-80.257658,17z/data=!3m1!5s0x88d907ec440d08e7:0x8a62a85010447c0!4m17!1m8!3m7!1s0x88d907eba23ffff5:0xba6da457509aa80!2s8201+Peters+Rd+%231000,+Plantation,+FL+33324,+USA!3b1!8m2!3d26.108305!4d-80.257658!10e3!3m7!1s0x88d907cec0952b55:0x1d6eb7d6f2a91f8!8m2!3d26.1082466!4d-80.2576057!9m1!1b1!16s%2Fg%2F11f4lmdrcd https://www.yelp.com/writeareview/biz/U9ZCCz8LGP5Rcptp49fPzg?return_url=%2Fbiz%2FU9ZCCz8LGP5Rcptp49fPzg&review_origin=biz-details-war-button https://www.facebook.com/TheHopkinsTeam/reviews/?ref=page_internal https://www.zillow.com/profile/TheHopkinsTeam/